Appartement neuf de 65m² - 1 chambre
209.950€
AppartementÀ vendreNouveau
514m²
65.94m²
1
Surface terrain
514 m²
Superficie habitable
65.94 m²
Nombre de chambre(s)
1
Année de construction
2025
Type de chauffage
Individuel Central gaz
Salle(s) d'eau
1
Terrasse(s)
oui
Description
PRIX CHOCS - ACTION VALABLE JUSQU'AU 22/02/2026
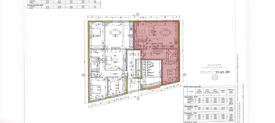
Découvrez cet appartement de 65m² situé au rez-de-chaussée d'une petite copropriété de 6 logements.
Il offre un hall d'entrée, un spacieux séjour de 34m² avec cuisine-équipée ouverte, une buanderie, une chambre de 11m², une salle de douche ainsi qu'une terrasse avec jardin privatif orienté sud/est.
Local vélo. Pas d'ascenseur. Emplacement de parking en supplément.
Eléments de confort : chauffage individuel au gaz de ville, panneaux photovoltaïques, ventilation simple flux, châssis double vitrage PVC.
VENTE SOUS REGIME TVA (possibilité de 6%).
Idéal pour investisseurs ou primo acquéreurs !

Ce bien vous intéresse ?
ID du bien : 19481
Appelez-nous ou
contactez notre agence via le formulaire.
LES VIVIERS NAMUR
081 22 24 22Contactez-nous
« * » indique les champs nécessaires
Vous aimerez peut-être aussi..










Contactez-nous




